×

Upozorenje

JUser: :_load: Nije moguće učitavanje korisnika sa ID: 256
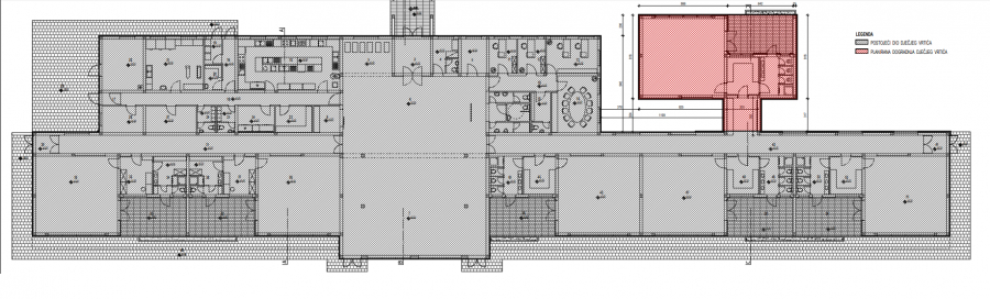
Općini Martijanec 1.224.000,00 kuna bespovratnih sredstava za dogradnju dječjeg vrtića

Općini Martijanec 1.224.000,00 kuna bespovratnih sredstava za dogradnju dječjeg vrtića

  • Pročitano 306 puta
  • 10, Pet 22
  • Napisao/la 
  • Vijesti

Općini Martijanec odobreno je 1.224.000,oo kuna bespovratnih sredstava za dogradnju Dječjeg vrtića ''Vlakić'' Martijanec. Ovim sredstvima financirat će se dogradnja još jedne prostorije kojom će se osigurati prostor za novu vrtićku grupu.

Projekt se sufinancira u sklopu Nacionalnog plana oporavka i otpornosti Ministarstva znanosti i obrazovanja.

Načelnik Martijanca, Branimir Nađ, ističe važnost ovakvih projekata:

''Ovo je jako lijepa vijest za sve stanovnika Martijanca. Ova sredstva utrošit ćemo na proširenje našeg vrtića i osigurati prostor za još jednu vrtićku grupu. Od velike nam je važnosti svaki natječaj koji se odnosi na demografiju i mlade, jer želimo da mlade obitelji u Martijancu imaju sve što im je potrebno, kako ne bi imale potrebu tražiti bolji život drugdje.'' poručuje  načelnik.

Koristimo kolačiće kako bismo Vam pružili najbolje korisničko iskustvo na našoj web stranici. Pod linkom "Opširnije" možete saznati više o kolačićima koje upotrebljavamo, svrhu i mogućnosti korištenja, a za nastavak pregleda i korištenja stranica, kliknite na “Razumijem”